location iconHemelrijk 2, 3980 Tessenderlo

Ondergrondse staanplaats in afgesloten gebouw.

€ 20.000

oppervlakte 12 m²

Beschrijving

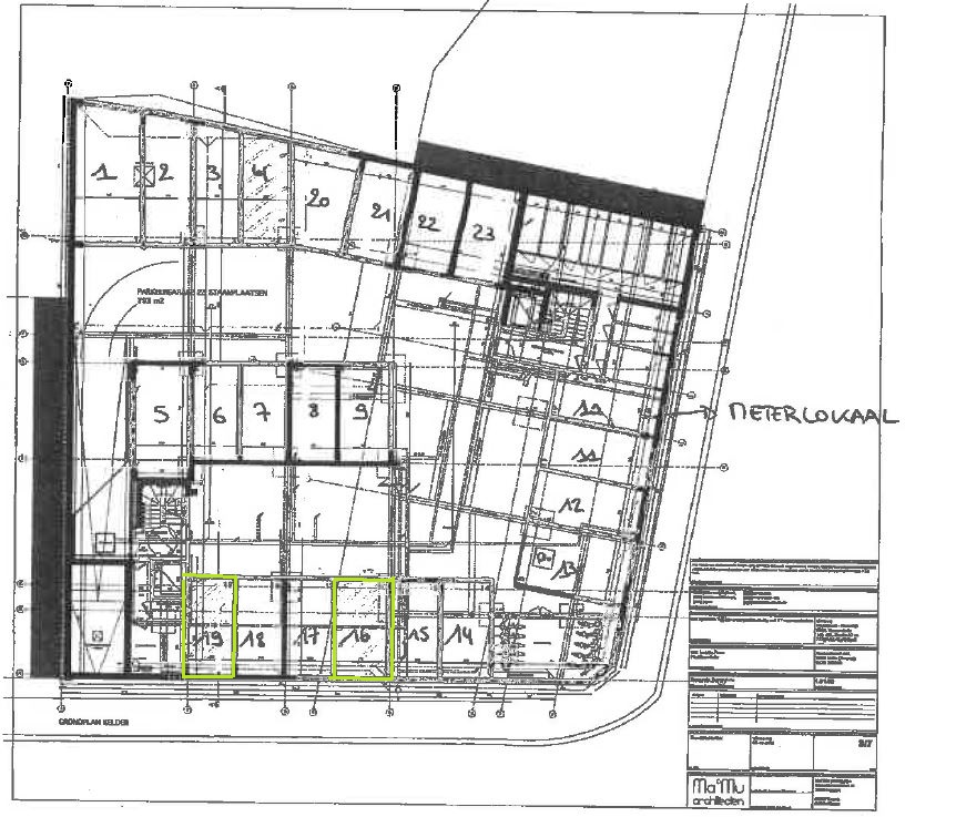
Ondergrondse autostaanplaats (nr. 16).

U kan uw auto veilig achterlaten vermits deze autostaanplaats is afgesloten met een sectionaal poort.

Interesse? Contacteer ons via het nummer 013 66 62 08.

Indeling

Bewoonbare oppervlakte12 m²

Details

Bouwjaar2014
GemeubeldNee

Financieel

Prijs € 20.000

Bijkomende informatie

Stedenbouwkundige vergunningNiet meegedeeld
Dagvaarding en herstelvorderingGeen rechterlijke herstelmaatregel of bestuurlijke maatregel opgelegd
Stedenbouwkundige bestemmingNiet meegedeeld
VoorkooprechtGeen voorkooprecht ruimtelijke ordening aanwezig
VerkavelingsvergunningNiet meegedeeld
Overstromingsgebied Niet gelegen in een overstromingsgevoelig gebied
p-score: C
g-score: C

Documenten

Plan

Seppe Steurs
Vastgoedexpert

Plan een bezoek of vraag meer informatie.

Hallo! Ik ben Seppe, uw vastgoedmakelaar, waarmee kan ik u helpen?

Gelijkaardige panden

icon locationVeldstraat 1, 2491 Balen Olmen

Parkeerplaats gelegen nabij het centrum van Olmen.

€ 16.000
icon locationNeerstraat , 3980 Tessenderlo

2 ondergrondse staanplaatsen centrum Tessenderlo!

€ 21.000
icon locationHemelrijk 2, 3980 Tessenderlo

Ondergrondse staanplaats in afgesloten gebouw.

€ 20.000

Deel dit pand

Blijf op de hoogte

Als eerste op de hoogte van het nieuwste aanbod?
Laat weten wat je zoekt en wij helpen je verder!

Blijf op de hoogte